Budynek M - rzuty lokali na 1 piętrze

Wybierz budynek i piętro poniżej


Osiedle Gnieźnieńska - budynek M - elewacja południowa zachodnia.
Budynek M

Informujemy że, firma WEXEL ruszyła z realizacją kolejnego budynku na Osiedlu przy ul. Gnieźnieńska 28 oznaczonego literą „M” składającego się z 34 nowych mieszkań. Budynek 4 kondygnacyjny. Termin realizacji inwestycji: ...

Czytaj więcej

Zaawansowanie budowy:

60%

Zmień poziom Budynek M


Przejdź do: Mieszkań Komórek


Mieszkania na 1 piętrze, Budynek M

Rozmieszczenie mieszkań na 1 piętrze poniżej

Rozmieszczenie mieszkań Budynek M - na 1 piętrze

Wykaz mieszkań na 1 piętrze poniżej

LP: 9

Oznaczenie mieszkania: 1.9, Budynek M

Powierzchnia mieszkania: 43.14 m2

Cena brutto: 353 748.00

Cena brutto za m2: 8 200.00

Opis: Salon z aneksem kuchennym, sypialnia, balkon

Ilość pokojów: 2

Powierzchnia balkonu / tarasu: 6.60 m2

lub

Podgląd rzutu mieszkania

Podgląd rzutu mieszkania: 9, 1.9 - poziom: 1, Budynek M

LP: 10

Oznaczenie mieszkania: 1.8, Budynek M

Powierzchnia mieszkania: 37.83 m2

Cena brutto: 310 206.00

Cena brutto za m2: 8 200.00

Opis: Salon z aneksem kuchennym, sypialnia, balkon

Ilość pokojów: 2

Powierzchnia balkonu / tarasu: 7.85 m2

lub

Podgląd rzutu mieszkania

Podgląd rzutu mieszkania: 10, 1.8 - poziom: 1, Budynek M

LP: 11

Oznaczenie mieszkania: 1.7, Budynek M

Powierzchnia mieszkania: 36.47 m2

Cena brutto: 299 054.00

Cena brutto za m2: 8 200.00

Opis: Salon z aneksem kuchennym, sypialnia, balkon

Ilość pokojów: 2

Powierzchnia balkonu / tarasu: 8.66 m2

lub

Podgląd rzutu mieszkania

Podgląd rzutu mieszkania: 11, 1.7 - poziom: 1, Budynek M

LP: 12

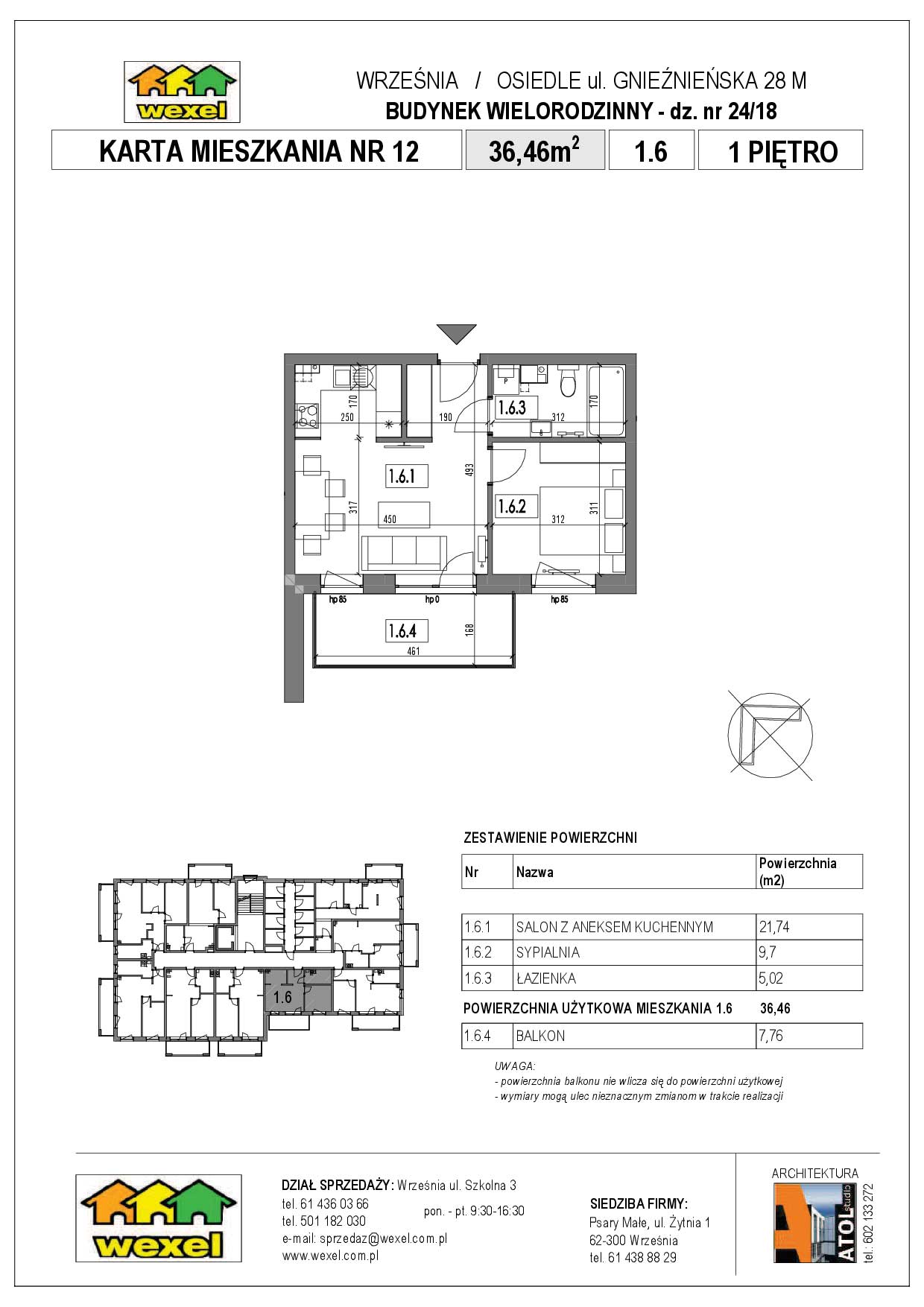
Oznaczenie mieszkania: 1.6, Budynek M

Powierzchnia mieszkania: 36.46 m2

Cena brutto: 298 972.00

Cena brutto za m2: 8 200.00

Opis: Salon z aneksem kuchennym, sypialnia, balkon

Ilość pokojów: 2

Powierzchnia balkonu / tarasu: 7.76 m2

lub

Podgląd rzutu mieszkania

Podgląd rzutu mieszkania: 12, 1.6 - poziom: 1, Budynek M

LP: 13

Oznaczenie mieszkania: 1.5, Budynek M

Powierzchnia mieszkania: 42.22 m2

Cena brutto: 346 204.00

Cena brutto za m2: 8 200.00

Opis: Salon z aneksem kuchennym, sypialnia, balkon

Ilość pokojów: 2

Powierzchnia balkonu / tarasu: 7.94 m2

lub

Podgląd rzutu mieszkania

Podgląd rzutu mieszkania: 13, 1.5 - poziom: 1, Budynek M

LP: 14

Oznaczenie mieszkania: 1.4, Budynek M

Powierzchnia mieszkania: 42.22 m2

Cena brutto: 346 204.00

Cena brutto za m2: 8 200.00

Opis: Salon z aneksem kuchennym, sypialnia, balkon

Ilość pokojów: 2

Powierzchnia balkonu / tarasu: 7.94 m2

lub

Podgląd rzutu mieszkania

Podgląd rzutu mieszkania: 14, 1.4 - poziom: 1, Budynek M

LP: 15

Oznaczenie mieszkania: 1.3, Budynek M

Powierzchnia mieszkania: 45.48 m2

Cena brutto: 372 936.00

Cena brutto za m2: 8 200.00

Opis: Salon z aneksem kuchennym, sypialnia, balkon

Ilość pokojów: 2

Powierzchnia balkonu / tarasu: 10.52 m2

lub

Podgląd rzutu mieszkania

Podgląd rzutu mieszkania: 15, 1.3 - poziom: 1, Budynek M

LP: 16

Oznaczenie mieszkania: 1.2, Budynek M

Powierzchnia mieszkania: 57.51 m2

Cena brutto: 471 582.00

Cena brutto za m2: 8 200.00

Opis: Salon z aneksem kuchennym, 2 sypialnie, balkon

Ilość pokojów: 3

Powierzchnia balkonu / tarasu: 10.52 m2

lub

Podgląd rzutu mieszkania

Podgląd rzutu mieszkania: 16, 1.2 - poziom: 1, Budynek M

LP: 17

Oznaczenie mieszkania: 1.1, Budynek M

Powierzchnia mieszkania: 41.12 m2

Cena brutto: 337 184.00

Cena brutto za m2: 8 200.00

Opis: Salon z aneksem kuchennym, sypialnia, balkon

Ilość pokojów: 2

Powierzchnia balkonu / tarasu: 7.93 m2

lub

Podgląd rzutu mieszkania

Podgląd rzutu mieszkania: 17, 1.1 - poziom: 1, Budynek M

Komórki lokatorskie na 1 piętrze, Budynek M

Rozmieszczenie komórek lokatorskich na 1 piętrze poniżej

Rozmieszczenie komórek lokatorskich Budynek M - na 1 piętrze

Wykaz komórek lokatorskich na 1 piętrze poniżej

LP: 9

Oznaczenie komórki: 1.17, Budynek M

Powierzchnia komórki: 3.81 m2

Cena brutto: 18 669.00

Cena brutto za m2: 4 900.00

lub

LP: 10

Oznaczenie komórki: 1.16, Budynek M

Powierzchnia komórki: 3.81 m2

Cena brutto: 18 669.00

Cena brutto za m2: 4 900.00

lub

LP: 11

Oznaczenie komórki: 1.15, Budynek M

Powierzchnia komórki: 3.81 m2

Cena brutto: 18 669.00

Cena brutto za m2: 4 900.00

lub

LP: 12

Oznaczenie komórki: 1.14, Budynek M

Powierzchnia komórki: 3.81 m2

Cena brutto: 18 669.00

Cena brutto za m2: 4 900.00

lub

LP: 13

Oznaczenie komórki: 1.18, Budynek M

Powierzchnia komórki: 3.27 m2

Cena brutto: 16 023.00

Cena brutto za m2: 4 900.00

lub

LP: 14

Oznaczenie komórki: 1.19, Budynek M

Powierzchnia komórki: 3.27 m2

Cena brutto: 16 023.00

Cena brutto za m2: 4 900.00

lub

LP: 15

Oznaczenie komórki: 1.20, Budynek M

Powierzchnia komórki: 3.27 m2

Cena brutto: 16 023.00

Cena brutto za m2: 4 900.00

lub

LP: 16

Oznaczenie komórki: 1.21, Budynek M

Powierzchnia komórki: 3.27 m2

Cena brutto: 16 023.00

Cena brutto za m2: 4 900.00

lub

LP: 17

Oznaczenie komórki: 1.22, Budynek M

Powierzchnia komórki: 3.01 m2

Cena brutto: 14 749.00

Cena brutto za m2: 4 900.00

lub

Copyright © 2026 Wexel Września - nowe mieszkania - osiedle Gnieźnieńska - od dewelopera - osiedlegnieznienska.pl. Wszystkie prawa zastrzeżone.

Projekt i realizacja: PP Computers